top of page
Create Your First Project
Start adding your projects to your portfolio. Click on "Manage Projects" to get started
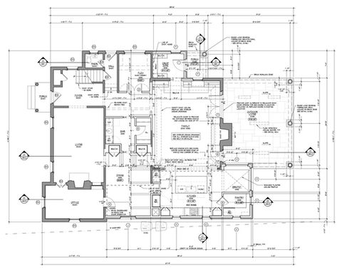
Myers Park
Our recent Georgian Revival project showcases a stunning two-story addition with a spacious kitchen open to the living room, a new play/guest room above, and a charming covered patio at the rear. Experience luxury living at its finest with Longmont Home Design, where we bring your dream home to life with meticulous attention to detail.
bottom of page














