top of page
Create Your First Project
Start adding your projects to your portfolio. Click on "Manage Projects" to get started
Mainline
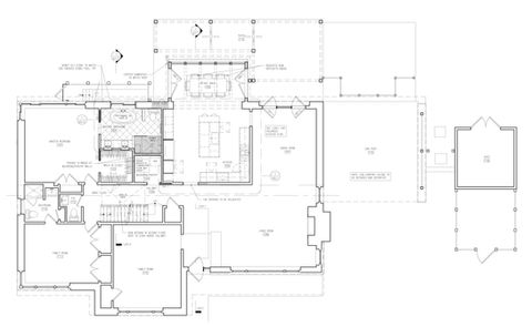
Introducing the latest project by Longmont Home Design, a ranch style home with craftsman influences showcasing a stunning renovation that includes a newly designed kitchen with a cozy breakfast nook, luxurious master bathroom, spacious closets, and a convenient laundry area. Experience the perfect blend of style and functionality with Longmont Home Design, where we turn your dream home into a reality, one detail at a time.
bottom of page










