top of page
Create Your First Project
Start adding your projects to your portfolio. Click on "Manage Projects" to get started
Erdenheim
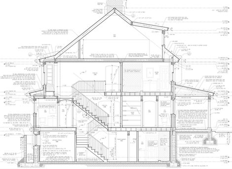
We proudly present a recent project that features a traditional Colonial Revival house with a seamless major addition that nearly doubled its size. The new kitchen, master suite, laundry, and large side porch stay true to the original architecture, complemented by a fabulous central staircase that acts as a lightwell to the heart of the house. Experience the perfect fusion of classic design and modern convenience with Longmont Home Design.










bottom of page


